Haus, Kauf, Lebach
Immobilienportal-saarland.de
Saniertes Reihenendhaus mit großzügigem Garten und Scheune

Saniertes Reihenendhaus mit großzügigem Garten und Scheune

Objektbeschreibung

Ein Zuhause zum Ankommen und Wohlfühlen.



Dieses charmante Reihenendhaus aus dem Jahr 1895 verbindet historischen Charakter mit modernem Wohnkomfort. Auf einem großzügigen Grundstück von ca. 1.300 m² bietet das Haus mit rund 140 m² Wohnfläche und ca. 150 m² Nutzfläche viel Raum für individuelle Entfaltung. Der Wohnbereich wurde 2021 umfassend saniert – einziehen und direkt wohlfühlen lautet hier die Devise.



Erdgeschoss:

Ein einladender Flur führt in den offen gestalteten Wohn- und Essbereich mit angrenzender Küche. Von hier aus gelangen Sie direkt in den weitläufigen Garten, der mit seiner Großzügigkeit besonders viel Potenzial bietet. Derzeit fehlt noch eine fest installierte Treppe um den Zugang zum Garten zu gewähren. Zudem befinden sich im Erdgeschoss das Badezimmer, der Zugang zum Keller und die Verbindung zur ehemaligen Scheune.



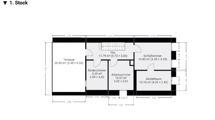
Obergeschoss:

Zwei helle Schlafzimmer sorgen für ein angenehmes Wohngefühl. Das größere Zimmer verfügt über einen zusätzlichen Raum, der sich ideal als Ankleidezimmer eignet. Ein weiteres Zimmer wird aktuell als Arbeitszimmer genutzt. Von dieser Etage aus gelangen Sie auf die sonnige Terrasse – ein Ausbau zum Wintergarten wäre möglich, entsprechende Anschlüsse sind bereits vorhanden.



Dachgeschoss:

Das Dachgeschoss überzeugt durch seine angenehme Raumhöhe und bietet weiteres Ausbaupotenzial – beispielsweise für ein Gästezimmer, Atelier oder einen gemütlichen Rückzugsort.



Ehemalige Scheune & Stall:

Ein besonderes Highlight ist die direkt angebaute ehemalige Scheune mit angrenzendem ehemaligen Stall. Diese Flächen eröffnen zahlreiche Nutzungsmöglichkeiten – ob als Werkstatt, Lagerraum oder kreativer Hobbybereich. Aktuell befinden sich hier der Pelletofen sowie ein nicht angeschlossener Warmwasserspeicher.



Hinweis:

Aufgrund eines Sturmschadens am Dach kam es zu einem Wasserschaden im kleineren Schlafzimmer und in der Küche. Die Versicherung wurde bereits informiert und die Behebung ist in Arbeit. Auch die Terrasse wird derzeit überarbeitet.

Lage

Landsweiler ist ein Ortsteil der Stadt Lebach im Landkreis Saarlouis und zählt mit rund 1.600 Einwohnern zu den größeren Stadtteilen. Der Ort liegt eingebettet in die waldreiche Landschaft des Saar-Nahe-Berglands und bietet eine ruhige, naturnahe Wohnatmosphäre. Durch die Bundesstraße B 268 ist Landsweiler sehr gut an Saarbrücken und die umliegenden Städte angebunden, zudem besteht über den Haltepunkt Landsweiler Süd und den Bahnhof Lebach eine Anbindung an den öffentlichen Nahverkehr. Im Ort selbst finden sich eine Grundschule, ein Kindergarten sowie verschiedene Vereine und die Pfarrkirche St. Donatus, während Einkaufsmöglichkeiten, ärztliche Versorgung und Gastronomie im nahegelegenen Zentrum von Lebach schnell erreichbar sind. Zahlreiche Wander- und Naherholungsgebiete, darunter der Stangenwald und der Wünschberg, runden die hohe Wohn- und Lebensqualität ab und machen Lebach-Landsweiler zu einer attraktiven Wohnlage für Familien, Pendler und Ruhesuchende.

Sonstiges

Weitere detaillierte Informationen zur Immobilien, finden Sie in unserem interaktiven Web-Exposé. Dazu gehören unter anderem der vollständige Energieausweis sowie weitere Bilder und tiefergehende Unterlagen. Bitte beachten Sie, dass wir Anfragen nur mit vollständigen Angaben bearbeiten können. Wir bitten Sie daher, uns alle erforderlichen Informationen zur Verfügung zu stellen, damit wir Ihnen schnell und umfassend weiterhelfen können.



Provision:

Die Maklerprovision in Höhe von 3,57% inkl. 19 % MwSt. vom Kaufpreis ist mit Abschluss des Kaufvertrages verdient und fällig. Der Makler ist auch für den Verkäufer provisionspflichtig tätig.



Hinweise:

Bitte beachten Sie, dass dieses Angebot anhand der uns vom Eigentümer zur Verfügung gestellten Daten und Unterlagen erstellt wurde. Trotz aller Sorgfalt können wir für die Richtigkeit und Vollständigkeit der Angaben keine Gewähr übernehmen. Die Abmaße der Grundrisse sind ohne Gewähr!

295.000 €

Kaufpreis

6

Anzahl Zimmer

140 m²

Wohnfläche

1.302 m²

Grundstücksfläche

Adresse

66822 Lebach

Preise & Kosten

Kaufpreis
295.000 €
Freiplätze
2
Käufer-Provision
Käufercourtage
3,57%

Angaben zur Immobilie

Objektart
Haus
Grundstücksfläche
1.302 m²
Größe Balkon/Terrasse
26 m²
Anzahl Zimmer
6
Anzahl Badezimmer
1
Anzahl Balkone
1
Stellplätze
2
Wohnfläche
140 m²
Nutzfläche
150 m²
co2_emissionen
4.3
Baujahr
1895
Letzte Modernisierungen
2021
Zustand des Objektes
Vollsaniert

EnergieausweisF

0
>250
Endenergiebedarf
188.7 kWh/(a·m²)
Gebäudeart
Wohnimmobilie
Energieausweis
Bedarf
Gültig bis
20.10.2035
Endenergiebedarf
188.7
Erstellungsdatum
Ausgestellt ab dem 01.05.2014
Ausstelldatum
21.10.2025
Energieeffizenzklasse
F
Primärenergieträger
Holzpellets
Letzte Modernisierungen
2021

Ausstattung

Stellplatzart
Freiplatz
Bad
Dusche, Fenster
Küche
Einbauküche
Boden
Fliesen, Dielen
Kamin
befeuerung
Pellets
Ausstattungsqualität
Standard
Gartennutzung
Abstellraum
Unterkellert
Ja

- Pelletofen mit Warmwasserspeicher (Aktuell nur für die Heizung geschaltet)

- Kaminofen im Wohnzimmer

- Warmwasser über Durchlauferhitzer

- Bad saniert (2021)

- Elektroinstallation (2021)

- Wasserleitungen erneuert (2021)

- Boden/Wände erneuert (2021)

- 2-Fach verglaste Fenster Rückseite (2021)

- 3-Fach verglaste Fenster Vorderseite (2021)

- Statische Verbesserung Keller (2021)

- Hauptdach erneuert ca. 2010

- Scheunendach aus Eternit

- PV Anlage (2021)

- Geschossdeckendämmung Keller zu EG (2021)

- Geschossdeckendämmung OG zu Dach (2021)

- Dachsparrendämmung (2021 - nicht vollständig ausgeführt)

Ansprechpartner

Lars Engstler

B&E Immobilien

Anbieter

B&E Immobilien

66822 Lebach

E-MailDiese E-Mail-Adresse ist vor Spambots geschützt! Zur Anzeige muss JavaScript eingeschaltet sein.

Bilder

Saniertes Reihenendhaus mit großzügigem Garten und Scheune
Saniertes Reihenendhaus mit großzügigem Garten und Scheune
Saniertes Reihenendhaus mit großzügigem Garten und Scheune
Saniertes Reihenendhaus mit großzügigem Garten und Scheune
Saniertes Reihenendhaus mit großzügigem Garten und Scheune
Saniertes Reihenendhaus mit großzügigem Garten und Scheune
Saniertes Reihenendhaus mit großzügigem Garten und Scheune
Saniertes Reihenendhaus mit großzügigem Garten und Scheune
Saniertes Reihenendhaus mit großzügigem Garten und Scheune
Saniertes Reihenendhaus mit großzügigem Garten und Scheune
Saniertes Reihenendhaus mit großzügigem Garten und Scheune