Haus, Kauf, Zweibrücken
Immobilienportal-saarland.de
AM FLUGPLATZ - Gewerbeobjekt mit Büroflächen/Werkstatthallen/Stellplätzen in Zweibrücken

AM FLUGPLATZ - Gewerbeobjekt mit Büroflächen/Werkstatthallen/Stellplätzen in Zweibrücken

Objektbeschreibung

Gewerbeobjekt mit Werkstatthalle, Bürotrakt und großzügigem Außenbereich in 66482 Zweibrücken



Dieses vielseitig nutzbare Gewerbeobjekt befindet sich in einem etablierten Industriegebiet auf dem ehemaligen Flugplatz in Zweibrücken. Die Liegenschaft bietet eine ideale Kombination aus großzügigen Hallenflächen und modernen Büroeinheiten und ist vollständig eingezäunt. Das Gelände verfügt über ausreichend Außenflächen mit Stellplätzen für bis zu 12 PKW, was sowohl für Kundenverkehr als auch für Mitarbeiter attraktiv ist.



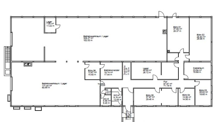
Das Gebäude wurde zwischen 2003 und 2019 umfassend modernisiert und präsentiert sich heute in einem gepflegten Zustand. Es erstreckt sich über ein Untergeschoss sowie ein großzügiges Erdgeschoss mit insgesamt ca. 1.073 m² Nutzfläche.





Raumaufteilung:



Untergeschoss (ca. 68 m²):



- Ehemaliger Heizungstechnikraum



- Ehemaliges Öllager





Erdgeschoss (ca. 1.006 m²):



- Zwei große Betriebswerkhallen mit über 500 m² Fläche, ideal für Produktion, Werkstatt oder Lager



- Separater Besprechungsraum (ca. 73 m²)



- Sechs helle und gut geschnittene Büroräume mit Größen zwischen ca. 13 und 47 m²



- Sozialraum, Teeküche sowie getrennte Damen- und Herren-WCs



- Lagerflächen für Materialien oder Akten



- Empfangsbereich/Windfang



- Flur- und Erschließungsflächen mit ausreichend Bewegungsfreiheit





Besonderheiten:



- Flexible Nutzungsmöglichkeiten für Handwerksbetriebe, Produktion oder Logistik



- Repräsentativer Eingang mit funktionalem Grundrisskonzept



- Die Lage im Gewerbegebiet auf dem Flugplatz Zweibrücken bietet ein ruhiges, zugleich aber strategisch vorteilhaftes Umfeld für Unternehmen, die eine verkehrsgünstige Anbindung und ausreichend Raum zur Entfaltung benötigen.

Lage

- Flugplatz Zweibrücken - Gewerbe, Multimedia-Internet-Park und Outlet-Shopping mit direktem Autobahnanschluss



- mittelständische Unternehmen und kleine

Handwerksbetriebe im direkten Umfeld Gewerbepark aus den Bereichen:

- Produktion (z.B Kubota)

- Dienstleistung (z.B. Kundenzentrum John Deere)

- Logistik

- Luftfahrtwerften

- Kfz-Testcenter für Automotiv-Entwicklung

- Sonderlandeplatz



- Entfernungen:



Autobahnanschluss:

A8 – 2 km



Bahnhöfe

Bahnhof Zweibrücken – 3 km



Flughäfen

Saarbrücken – 41 km

Frankfurt-Hahn – 130 km

Frankfurt – 169 km

Zweibrücken - in unmittelbarer Nähe



Oberzentren

Zweibrücken – 10 km

Kaiserslautern – 63 km

Frankfurt – 178 km



- Eine gute Verkehrsanbindung wird über die in wenigen Minuten entfernte Fernstraßenanbindung nach Saarbrücken, Kaiserslautern und Pirmasens gewährleistet (Bundesstraße B10 und nahe gelegene Autobahnanbindung A8/A62). In wenigen Minuten erreichen Sie das Stadtzentrum von Zweibrücken.

Sonstiges

Der Makler-Vertrag mit uns und/oder unserem Beauftragten kommt durch die Bestätigung der Inanspruchnahme unserer Maklertätigkeit in Textform zustande, wie z.B. insbesondere die Unterschrift des Suchkundenvertrages und/oder des Objekt-Exposés. Die Höhe der Courtage richtet sich nach den ab dem 23.12.2020 in Kraft getretenen gesetzlichen Regelungen zur Teilung der Maklercourtage. Hiernach wird die Courtage regelmäßig für beide Parteien (Eigentümer und Käufer) 3,57 % auf den Kaufpreis inklusive gesetzlicher Umsatzsteuer betragen und ist bei notariellem Vertragsabschluss verdient und fällig. Die Höhe der Bruttocourtage unterliegt einer Anpassung bei Steuersatzänderung. Immobilia GmbH und ggf. deren Beauftragte erhalten einen unmittelbaren Zahlungsanspruch gegenüber dem Käufer (Vertrag zugunsten Dritter, § 328 BGB). Wir haben mit dem Verkäufer einen Maklervertrag in gleicher Höhe abgeschlossen. Grunderwerbssteuer, Notar- und Gerichtskosten trägt der Käufer.





Alleinverkauf durch die Fa. Immobilia GmbH



Ihr Ansprechpartner : Immobilia GmbH , 66482 Zweibrücken , Poststraße 19 , Immobilienberater Kai Goedicke B.A. Architektur, Tel. Nr. 06332 - 903460 , Email : kai.goedicke@immo-gessner.de



Unsere Objekte befindet sich im freien Verkauf. Wir sind auch für den Eigentümer tätig.

Die Objektdaten wurden uns vom Eigentümer genannt und sind ohne Gewähr.

Die Fälligkeit der Provision entsteht mit dem Abschluss des Kauf bzw. Mietvertrages .

Es gelten die Provisionen wie im Exposé angezeigt.

Die in den Exposé und Beschreibungen u. a. enthaltenen Angaben basieren auf Informationen des Verkäufers. Zu eigenen Nachforschungen ist die Fa. Immobilia GmbH nicht verpflichtet. Sie übernimmt deshalb keine Haftung für die Richtigkeit und Vollständigkeit der Angaben, es sei denn, die Unrichtigkeit beruht auf grobem Verschulden der Fa. Immobilia GmbH.



Besichtigungstermine sind jederzeit nach Absprache möglich.



Energieausweis in Bearbeitung!

898.000 €

Kaufpreis

10

Anzahl Zimmer

1.073,42 m²

Wohnfläche

2.570 m²

Grundstücksfläche

Adresse

66482 Zweibrücken

Preise & Kosten

Kaufpreis
898.000 €
Freiplätze
12
Käufer-Provision
Käufercourtage
3,57 %
Innencourtage
3,57 %

Angaben zur Immobilie

Objektart
Einfamilienhaus
Grundstücksfläche
2.570 m²
Kellerfläche
67,62 m²
Anzahl Zimmer
10
Stellplätze
12
Wohnfläche
1.073,42 m²
Nutzfläche
1.073,42 m²
Baujahr
1958
Zustand des Objektes
Modernisiert
Verfügbar ab
nach Absprache

Energieausweis

Gebäudeart
Wohnimmobilie
Erstellungsdatum
ohne
Primärenergieträger
Öl

Ausstattung

Stellplatzart
Freiplatz
heizungsart
Zentralheizung
befeuerung
Öl
Dachform
Satteldach
Unterkellert
Ja

- ISO KS Fenster mit Rollläden und Fliegengitter ca. 2003

- Fenster im Anbaubereich ca. 2014-2015

- Eingangstüren ca. 2006

- Türelement (Flur Bürotrakt) ca. 2008

- Dacherneuerung ca. 2004

- Außenanlage ca. 2006

- Sanierung der Abwasserleitungen ca. 2008

- Erneuerung der WC Anlagen ca. 2008

- Elektroinstallation im Bürobereich ca. 2008 vollständig erneuert

- Elektroinstallation im Werkstattbereich ca. 2015-2019 vollständig erneuert

- Starkstromanschlüsse vorhanden

- PV Anlage mit 30 kWp ca. 2012

- Buderus Öl Heizung mit 4500 l Tanks ca. 2014-2015

- Teppichboden im Büro ca. 2014-2015

- Renovierung im Bürobereich ca. 2015-2019

- Anstrich Gebäude außen ca. 2015-2019

- Gebäude außen gedämmt

- Gebäude ist vollständig eingezäunt

- Werkstatt mit Krananlage

- Hallenhöhe bis zum Träger ca. 4,90 m

- PKW Stellplätze 7 innen möglich / 5 außen

Ansprechpartner

Immobilia GmbH

66482 Zweibrücken

Anbieter

Immobilia GmbH IVD

66482 Zweibrücken

Telefon06332/903460
Webhttps://www.facebook.com/ImmobiliaZW/

Bilder

AM FLUGPLATZ - Gewerbeobjekt mit Büroflächen/Werkstatthallen/Stellplätzen in Zweibrücken
AM FLUGPLATZ - Gewerbeobjekt mit Büroflächen/Werkstatthallen/Stellplätzen in Zweibrücken
AM FLUGPLATZ - Gewerbeobjekt mit Büroflächen/Werkstatthallen/Stellplätzen in Zweibrücken
AM FLUGPLATZ - Gewerbeobjekt mit Büroflächen/Werkstatthallen/Stellplätzen in Zweibrücken
AM FLUGPLATZ - Gewerbeobjekt mit Büroflächen/Werkstatthallen/Stellplätzen in Zweibrücken
AM FLUGPLATZ - Gewerbeobjekt mit Büroflächen/Werkstatthallen/Stellplätzen in Zweibrücken
AM FLUGPLATZ - Gewerbeobjekt mit Büroflächen/Werkstatthallen/Stellplätzen in Zweibrücken
AM FLUGPLATZ - Gewerbeobjekt mit Büroflächen/Werkstatthallen/Stellplätzen in Zweibrücken
AM FLUGPLATZ - Gewerbeobjekt mit Büroflächen/Werkstatthallen/Stellplätzen in Zweibrücken
AM FLUGPLATZ - Gewerbeobjekt mit Büroflächen/Werkstatthallen/Stellplätzen in Zweibrücken
AM FLUGPLATZ - Gewerbeobjekt mit Büroflächen/Werkstatthallen/Stellplätzen in Zweibrücken
AM FLUGPLATZ - Gewerbeobjekt mit Büroflächen/Werkstatthallen/Stellplätzen in Zweibrücken
AM FLUGPLATZ - Gewerbeobjekt mit Büroflächen/Werkstatthallen/Stellplätzen in Zweibrücken
AM FLUGPLATZ - Gewerbeobjekt mit Büroflächen/Werkstatthallen/Stellplätzen in Zweibrücken
AM FLUGPLATZ - Gewerbeobjekt mit Büroflächen/Werkstatthallen/Stellplätzen in Zweibrücken
AM FLUGPLATZ - Gewerbeobjekt mit Büroflächen/Werkstatthallen/Stellplätzen in Zweibrücken
AM FLUGPLATZ - Gewerbeobjekt mit Büroflächen/Werkstatthallen/Stellplätzen in Zweibrücken
AM FLUGPLATZ - Gewerbeobjekt mit Büroflächen/Werkstatthallen/Stellplätzen in Zweibrücken
AM FLUGPLATZ - Gewerbeobjekt mit Büroflächen/Werkstatthallen/Stellplätzen in Zweibrücken
AM FLUGPLATZ - Gewerbeobjekt mit Büroflächen/Werkstatthallen/Stellplätzen in Zweibrücken
AM FLUGPLATZ - Gewerbeobjekt mit Büroflächen/Werkstatthallen/Stellplätzen in Zweibrücken
AM FLUGPLATZ - Gewerbeobjekt mit Büroflächen/Werkstatthallen/Stellplätzen in Zweibrücken
AM FLUGPLATZ - Gewerbeobjekt mit Büroflächen/Werkstatthallen/Stellplätzen in Zweibrücken
AM FLUGPLATZ - Gewerbeobjekt mit Büroflächen/Werkstatthallen/Stellplätzen in Zweibrücken
AM FLUGPLATZ - Gewerbeobjekt mit Büroflächen/Werkstatthallen/Stellplätzen in Zweibrücken
AM FLUGPLATZ - Gewerbeobjekt mit Büroflächen/Werkstatthallen/Stellplätzen in Zweibrücken
AM FLUGPLATZ - Gewerbeobjekt mit Büroflächen/Werkstatthallen/Stellplätzen in Zweibrücken
AM FLUGPLATZ - Gewerbeobjekt mit Büroflächen/Werkstatthallen/Stellplätzen in Zweibrücken
AM FLUGPLATZ - Gewerbeobjekt mit Büroflächen/Werkstatthallen/Stellplätzen in Zweibrücken
AM FLUGPLATZ - Gewerbeobjekt mit Büroflächen/Werkstatthallen/Stellplätzen in Zweibrücken
AM FLUGPLATZ - Gewerbeobjekt mit Büroflächen/Werkstatthallen/Stellplätzen in Zweibrücken
AM FLUGPLATZ - Gewerbeobjekt mit Büroflächen/Werkstatthallen/Stellplätzen in Zweibrücken
AM FLUGPLATZ - Gewerbeobjekt mit Büroflächen/Werkstatthallen/Stellplätzen in Zweibrücken
AM FLUGPLATZ - Gewerbeobjekt mit Büroflächen/Werkstatthallen/Stellplätzen in Zweibrücken
AM FLUGPLATZ - Gewerbeobjekt mit Büroflächen/Werkstatthallen/Stellplätzen in Zweibrücken
AM FLUGPLATZ - Gewerbeobjekt mit Büroflächen/Werkstatthallen/Stellplätzen in Zweibrücken
AM FLUGPLATZ - Gewerbeobjekt mit Büroflächen/Werkstatthallen/Stellplätzen in Zweibrücken
AM FLUGPLATZ - Gewerbeobjekt mit Büroflächen/Werkstatthallen/Stellplätzen in Zweibrücken
AM FLUGPLATZ - Gewerbeobjekt mit Büroflächen/Werkstatthallen/Stellplätzen in Zweibrücken