Wohnung, Kauf, Spiesen-Elversberg / Elversberg
Immobilienportal-saarland.de
Energetisch optimierte Neubauwohnung, Penthouse,  Panoramaausblick, provisionsfrei

Energetisch optimierte Neubauwohnung, Penthouse, Panoramaausblick, provisionsfrei

Objektbeschreibung

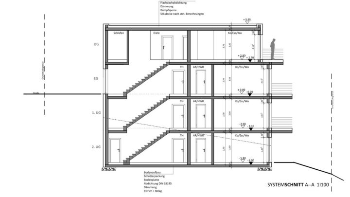
In Spitzenlage von Spiesen-Elversberg, befindet sich der energetisch nach neuestem Standard errichtete Neubau mit nur 4 Wohneinheiten. Das Gebäude wird im Jahr 2026 schlüsselfertig errichtet.



Diese nun noch verfügbare Penthouse Wohnung bietet den zukünftigen Bewohnern mit 3 Zimmern, Küche, Bad, Abstellraum und Balkon einen wunderschönen neuen Lebensmittelpunkt.



Der Neubau des erfahrenen Bauträgers bietet dabei auf 4 Etagen mit jeweils nur einer Wohnung pro Ebene Ruhe, Qualität und eine altersgerechte barrierearme Erschließung.



Vor dem Gebäude befinden sich optional erwerbbare (Außen-) Stellplätze (12.000 € Kaufpreis).



Die Luft-Wärmepumpe mit integrierter Warmwasseraufbereitung sorgt in Kombination mit der Dämmung des Gebäudes für planbar niedrige Energiekosten.



Die Ausstattung der Wohnung, die schlüsselfertig für Sie errichtet wird, lässt dabei keine Wünsche offen und vermittelt einen ebenso wertigen Eindruck wie die gesamte Immobilie.



Gerne informieren wir Sie in einem persönlichen Gespräch ausführlich und detailliert zu diesem Kaufobjekt und treffen uns mit Ihnen auch gerne unverbindlich zu einer Besichtigung vor Ort.



Wir freuen uns auf Ihre Anfragen, bitte übermitteln Sie uns dabei auch Ihre vollständigen Kontaktdaten.

Lage

Die Verbandsgemeinde Spiesen-Elversberg, bestehend aus den namensgebenden Ortsteilen, liegt verkehrsgünstig in der Nähe zur Biosphärenstadt St. Ingbert.



Auch die Anbindung an die saarländische Landeshauptstadt Saarbrücken und den Industriestandort Neunkirchen ist durch die Autobahnzubringer zur A8 und A6 hervorragend.



Der Ort selbst besitzt eine sehr gute Infrastruktur mit allen Einrichtungen des öffentlichen Lebens.



Durch die einerseits ländlich geprägte Lage und der andererseits positiven wirtschaftlichen Entwicklung des Ortes, bietet Spiesen-Elversberg einen attraktiven Platz zum Leben und Arbeiten.

Sonstiges

Selbstverständlich stehen wir Ihnen gerne mit weiteren Objektinformationen und für Besichtigungen zur Verfügung.



Alle im Exposé genannten Objektangaben und Informationen beruhen auf Angaben des Auftraggebers. Für die Richtigkeit und Vollständigkeit wird keine Haftung übernommen.



Hinweis zum Energieausweis:

Wir weisen alle Auftraggeber auf die aktuellen gesetzlichen Regelungen zur Vorlage eines Energieausweises hin. Im Einzelfalle ist der Ausweis zum Zeitpunkt der Erstellung des Exposé in Bearbeitung, also noch nicht erstellt und wird später nachgereicht. Wir bitten dies zu entschuldigen.

Ergänzender Hinweis: Ein übergebener Energieausweis stellt keine Beschaffenheitsvereinbarung dar. Unser Haftungsauschluss bezieht sich auch auf die darin enthaltenen Daten.



Die Pflichten nach dem Geldwäschegesetz (GwG)

• Der Gesetzgeber schreibt vor, dass Vertragspartner vor der Begründung einer Geschäftsbeziehung zu identifizieren sind. (§3 GwG). Immobilienmakler haben diese Sorgfaltspflicht einzuhalten. Die Identifizierung des Kaufinteressenten durch den Immobilienmakler muss erfolgt sein, bevor die Aufnahme der Kaufvertragsverhandlungen ermöglicht wird.

• Bei der Identifizierung sind entweder Name, Geburtsdatum und –Ort, Staatsangehörigkeit, Anschrift, Personalausweisnummer und ausstellende Behörde festzuhalten oder es ist der Ausweis zu kopieren.

• Darüber hinaus hat der Makler zu klären, ob der Kunde im eigenen wirtschaftlichen Interesse handelt oder für einen Dritten.

• Festgehalten werden muss auch, ob es sich bei dem Vertragspartner und ggf. wirtschaftlichen Berechtigten um eine Politisch exponierte Person (PeP) handelt.

• Als Kunde sind Sie verpflichtet, dem Immobilienmakler den Ausweis vorzulegen und die entsprechenden Auskünfte zu erteilen (§4 Abs. 6 GwG)

Bitte helfen Sie Ihrem Immobilienmakler dabei, die gesetzlichen Pflichten nach dem Geldwäschegesetz zu erfüllen.

• Zeigen Sie uns bitte Ihren Personalausweis und ermöglichen damit die vorgeschriebene Dokumentation.

419.000 €

Kaufpreis

3

Anzahl Zimmer

96 m²

Wohnfläche

2026 Fertigstellung

Verfügbar ab

Adresse

66583 Spiesen-Elversberg / Elversberg

Preise & Kosten

Kaufpreis
419.000 €
Stellplatzkaufpreis Freiplatz
12.000 €
Freiplätze
1

Angaben zur Immobilie

Objektart
Penthouse
Anzahl Zimmer
3
Anzahl Schlafzimmer
2
Anzahl Badezimmer
1
Anzahl Balkone
1
Stellplätze
1
Wohnfläche
96 m²
Verfügbar ab
2026 Fertigstellung

Ausstattung

heizungsart
Zentralheizung
befeuerung
Luft/Wasser Wärmepumpe

Neuwertige Wohnung in Effizienzhaus

Wohnung 4 im OG, Penthouse

Außenstellplatz optional verfügbar (12.000 €)

Tolle Lage im Neubaugebiet

Balkon mit Panorama-Weitblick

Ausstattungs-Highlights:

Luft-Wärmepumpe mit Warmwasseraufbereitung

3-fach verglaste ISO-Fenster

Fußbodenheizung

Elektrische Rollläden

Hochwertige Badausstattung

Böden Feinsteinfliesen, Parkett oder Vinyl

Granitfensterbänke

Terrassen- und Balkoneinfassungen aus Edelstahl und Glas

Videosprechanlage

Wände Malervlies weiss gestrichen

Gigabit-Netzwerkverkabelung

Ansprechpartner

Sascha Hertel

Eichenlaub & Dumont Immobilien e.K.

Anbieter

Eichenlaub & Dumont Immobilien e.K.

66133 Saarbrücken

Telefon0681 - 855 486
E-MailDiese E-Mail-Adresse ist vor Spambots geschützt! Zur Anzeige muss JavaScript eingeschaltet sein.
Webhttps://www.eichenlaub-dumont.de

Bilder

Energetisch optimierte Neubauwohnung, Penthouse,  Panoramaausblick, provisionsfrei
Energetisch optimierte Neubauwohnung, Penthouse,  Panoramaausblick, provisionsfrei
Energetisch optimierte Neubauwohnung, Penthouse,  Panoramaausblick, provisionsfrei
Energetisch optimierte Neubauwohnung, Penthouse,  Panoramaausblick, provisionsfrei
Energetisch optimierte Neubauwohnung, Penthouse,  Panoramaausblick, provisionsfrei
Energetisch optimierte Neubauwohnung, Penthouse,  Panoramaausblick, provisionsfrei
Energetisch optimierte Neubauwohnung, Penthouse,  Panoramaausblick, provisionsfrei
Energetisch optimierte Neubauwohnung, Penthouse,  Panoramaausblick, provisionsfrei
Energetisch optimierte Neubauwohnung, Penthouse,  Panoramaausblick, provisionsfrei
Energetisch optimierte Neubauwohnung, Penthouse,  Panoramaausblick, provisionsfrei
Energetisch optimierte Neubauwohnung, Penthouse,  Panoramaausblick, provisionsfrei
Energetisch optimierte Neubauwohnung, Penthouse,  Panoramaausblick, provisionsfrei
Energetisch optimierte Neubauwohnung, Penthouse,  Panoramaausblick, provisionsfrei
Energetisch optimierte Neubauwohnung, Penthouse,  Panoramaausblick, provisionsfrei
Energetisch optimierte Neubauwohnung, Penthouse,  Panoramaausblick, provisionsfrei