Der Kurort ORSCHOLZ ist der größte Ortsteil der Gemeinde Mettlach im Landkreis Merzig-Wadern. Der heilklimatische Luftkurort Orscholz ist bekannt durch die berühmte Cloef - mit dem einzigartigen Blick auf das Wahrzeichen des Saarlandes - die wunderschöne Saarschleife. Orscholz ist ein idealer Wohnort für Familien mit Kindern. Grundschule, Gesamt- und Gemeinschaftsschule, Kindergarten mit Kita sind vor Ort. Nicht zu vergessen, das bekannte Gesundheitszentrum Saarschleife und die sehr gute Infrastruktur. Grenznah zu L-Remich und L-Schengen.
STÜNDLICHE BUSVERBINDUNGEN NACH LUXEMBURG MIT DEM SAAR-LUX-BUS.
Zum Deutsch-Luxemburgischen Schengen-Lyzeum in Perl besteht eine Busverbindung. Die Autobahnanbindungen Luxemburg und Saarbrücken erreichen Sie in wenigen Fahrminuten.
17 km bis D-Saarburg
19 km bis D-Merzig
14 km bis L-Remich / Schengen
36 km bis L-Kirchberg
Objektbeschreibung
15 MIN. BIS L-REMICH/SCHENGEN: ORSCHOLZ
Dieses Wohnhaus mit viel Potenzial bietet vielfältige Nutzungsmöglichkeiten für Familien oder als Kombination aus Wohnen und Arbeiten. Die Immobilie befindet sich in ruhiger Wohnlage und überzeugt durch eine durchdachte Raumaufteilung sowie einen gepflegten Außenbereich.
Im Erdgeschoss erwartet Sie eine funktionale Küche, ein großes Wohnzimmer sowie ein Duschbad mit separatem WC. Eine integrierte Garage sorgt für direkten Zugang ins Haus und bietet zusätzlichen Komfort.
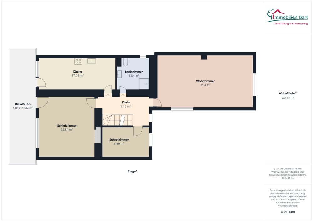
Das Obergeschoss verfügt über eine weitere Küche, ein Badezimmer, ein Wohnzimmer mit direktem Zugang zum Balkon sowie zwei Schlafzimmer.
Im Dachgeschoss stehen zwei bis drei weitere Zimmer zur Verfügung, die je nach Bedarf als Schlaf-, Arbeits- oder Hobbyräume genutzt werden können.
Im Kellergeschoss befindet sich ein großer Gewölbekeller.
Der liebevoll angelegte, kleine Garten lädt zum Entspannen ein und bietet Raum für Freizeit und Erholung im Freien.
Abgerundet wird das Angebot durch eine Garage sowie drei bis vier zusätzliche Stellplätze, sodass ausreichend Platz für Fahrzeuge vorhanden ist.
Dieses Haus bietet eine solide Basis und viel Raum für individuelle Gestaltungsideen – ideal für Käufer, die sich ihr neues Zuhause nach eigenen Vorstellungen verwirklichen möchten.
Sonstiges
Unser gesamtes Immobilienangebot können Sie unter www.immobilien-bart.de einsehen.
Haben wir Ihr Interesse geweckt? Für einen unverbindlichen Besichtigungstermin stehen wir Ihnen nach vorheriger Terminabsprache gerne zur Verfügung. Bitte haben Sie Verständnis dafür, dass wir Anfragen nur bearbeiten, wenn uns der vollständige Name, die Postanschrift und eine Rufnummer mitgeteilt wird. Ihre Daten werden selbstverständlich streng vertraulich und nur für diese Anfrage verwendet.
Sie möchten diese Immobilie finanzieren?
Vereinbaren Sie mit uns einen Beratungstermin, natürlich kostenfrei und unverbindlich. Aus einem Pool von 100 Banken finden wir, auch für Sie, die passende Finanzierung!
Die Käuferprovision beträgt 3,57 % inkl. MwSt. vom notariell beurkundeten Kaufpreis und ist verdient und fällig mit der notariellen Beurkundung.
Haftungsvorbehalt: Sämtliche Angaben erhielten wir vom Eigentümer und geben diese ohne Haftung weiter. Irrtum und Zwischenverkauf bleiben vorbehalten.
Ausstattung
Boden
Fliesen, Laminat, Kunststoff
heizungsart
Zentralheizung
befeuerung
Öl
Die Böden sind mit PVC, Laminat und Fliesen belegt.
Die Beheizung erfolgt durch eine Öl-Zentralheizung.
KEINE VERMITTLUNGSGEBÜHREN, EINFAMILIENHAUS, BLOCKHAUS IN COCHEREN/FR, NÄHE SAARBRÜCKEN
140 m² Wohnfläche • 1.345 m² Grundstücksfläche • 5 Anzahl Zimmer • 4 Anzahl Schlafzimmer • 2 Anzahl Badezimmer
Sie haben nicht das passende gefunden? - Aktivieren Sie den Suchagenten
Aktivieren Sie den Suchagenten und Sie erhalten die neuesten Angebote zu Ihrer Suche sofort und kostenlos per E-Mail. Sie können Ihren Suchauftrag jederzeit bearbeiten oder beenden. Suchagenten jetzt aktivieren! Neue Angebote erhalten