Wadgassen liegt im Herzen des Saarlandes und besticht durch seine ruhige und familienfreundliche Atmosphäre. Die Gemeinde bietet eine perfekte Mischung aus ländlichem Charme und guter Anbindung an größere Städte. Die Umgebung ist geprägt von grünen Wäldern, Wiesen und Naherholungsgebieten, die zu Spaziergängen und Freizeitaktivitäten einladen.
In Wadgassen finden Sie alle wichtigen Einrichtungen des täglichen Bedarfs, wie Einkaufsmöglichkeiten, Supermärkte, Apotheken und Ärzte, die bequem erreichbar sind. Für Familien stehen mehrere Kindergärten und Grundschulen zur Verfügung, während weiterführende Schulen in den umliegenden Gemeinden leicht erreichbar sind.
Die gastronomische Vielfalt in Wadgassen ist groß: Es gibt zahlreiche Restaurants, Cafés und Gaststätten, die für jeden Geschmack etwas bieten.
Wadgassen ist auch wirtschaftlich gut aufgestellt: Verschiedene Firmen, Handwerksbetriebe und Dienstleister sind hier ansässig, was die Gemeinde zu einem lebendigen Wirtschaftsstandort macht.
Die gute Verkehrsanbindung ermöglicht eine schnelle Verbindung nach Saarbrücken, Saarlouis und in die umliegenden Regionen. Die nahegelegenen Autobahnen und Buslinien sorgen für eine bequeme Mobilität.
Hier genießen Sie eine hohe Lebensqualität in einer charmanten, naturnahen Umgebung mit vielfältigen Angeboten für Freizeit, Bildung und Arbeit.
Objektbeschreibung
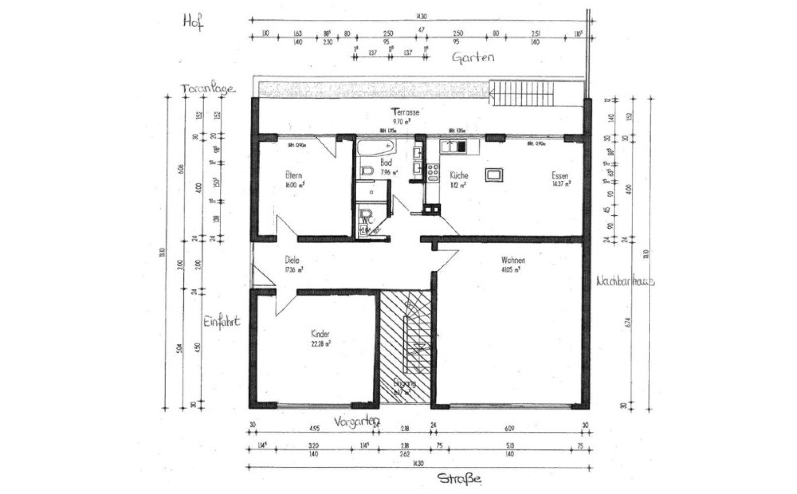
Diese schöne und sehr gepflegte EG-Wohnung mit eigenem Garten wartet in ruhiger Lage in Wadgassen auf ihre neuen Bewohner.
Das Haus mit insgesamt drei Wohnungen ist bestens gepflegt und wurde in den letzten Jahren in allen Gewerken renoviert und saniert. Auch die Fassade ist gedämmt.
Entsprechend präsentiert sich die Wohnung in bestem Zustand und ist sofort bezugsbereit. Die Ausstattung ist durchweg hochwertig. Marmorböden im Flur, Echtholzparkett in den Wohn- und Schlafräumen, ein neuwertiges Bad und ein separates WC.
Eine ebenfalls neuwertige moderne Einbauküche mit amerikanischem Kühlschrank komplettiert diese Wohnung.
Zusätzlich ist die Wohnung mit einem eigenen Eingang separiert vom Rest des Hauses und verfügt über einen eigenen abgeschlossenen Garten.
Zwei Stellplätze sind im eingefriedeten Innenhof verfügbar.
Im Keller des Hauses gibt es einen eigenen Abstellraum mit Hauswirtschaftsraum und großen Tageslichtfenster.
Eine wirklich tolle und sehr gepflegte, hochwertig ausgebaute Wohnung.
Wir freuen uns auf Ihre Anfragen. Bitte kontaktieren Sie uns dabei mit Angabe Ihrer vollständigen Kontaktdaten und Ihrer beruflichen Position. Die Immobilie ist geeignet für maximal 3 Personen.
Sonstiges
Selbstverständlich stehen wir Ihnen gerne mit weiteren Objektinformationen und für Besichtigungen zur Verfügung.
Alle im Exposé genannten Objektangaben und Informationen beruhen auf Angaben des Auftraggebers. Für die Richtigkeit und Vollständigkeit wird keine Haftung übernommen.
Hinweis zum Energieausweis:
Wir weisen alle Auftraggeber auf die aktuellen gesetzlichen Regelungen zur Vorlage eines Energieausweises hin. Im Einzelfalle ist der Ausweis zum Zeitpunkt der Erstellung des Exposé in Bearbeitung, also noch nicht erstellt und wird später nachgereicht. Wir bitten dies zu entschuldigen.
Ergänzender Hinweis: Ein übergebener Energieausweis stellt keine Beschaffenheitsvereinbarung dar. Unser Haftungsauschluss bezieht sich auch auf die darin enthaltenen Daten.
Die Pflichten nach dem Geldwäschegesetz (GwG)
• Der Gesetzgeber schreibt vor, dass Vertragspartner vor der Begründung einer Geschäftsbeziehung zu identifizieren sind. (§3 GwG). Immobilienmakler haben diese Sorgfaltspflicht einzuhalten. Die Identifizierung des Kaufinteressenten durch den Immobilienmakler muss erfolgt sein, bevor die Aufnahme der Kaufvertragsverhandlungen ermöglicht wird.
• Bei der Identifizierung sind entweder Name, Geburtsdatum und –Ort, Staatsangehörigkeit, Anschrift, Personalausweisnummer und ausstellende Behörde festzuhalten oder es ist der Ausweis zu kopieren.
• Darüber hinaus hat der Makler zu klären, ob der Kunde im eigenen wirtschaftlichen Interesse handelt oder für einen Dritten.
• Festgehalten werden muss auch, ob es sich bei dem Vertragspartner und ggf. wirtschaftlichen Berechtigten um eine Politisch exponierte Person (PeP) handelt.
• Als Kunde sind Sie verpflichtet, dem Immobilienmakler den Ausweis vorzulegen und die entsprechenden Auskünfte zu erteilen (§4 Abs. 6 GwG)
Bitte helfen Sie Ihrem Immobilienmakler dabei, die gesetzlichen Pflichten nach dem Geldwäschegesetz zu erfüllen.
• Zeigen Sie uns bitte Ihren Personalausweis und ermöglichen damit die vorgeschriebene Dokumentation.
Ausstattung
heizungsart
Zentralheizung
befeuerung
Öl
Kabel / Sat- TV
Eigener Eingang
Eigener Garten
Hochwertige Einbauküche
Offene, helle und moderne Raumaufteilung
Großes Bad mit Wanne und bodengleicher Dusche und Einbauschränke und ein Gäste-WC
2 Stellplätze hinter einer Toranlage auf dem Grundstück
Holz-Messing Fenster mit Sicht- und Wärmeschutzfolie
Sie haben das Recht, binnen vierzehn Tagen ohne Angabe von Gründen diesen Vertrag zu widerrufen. Die Widerrufsfrist beträgt vierzehn Tage ab dem Tag des Vertragsabschlusses. Um Ihr Widerrufsrecht auszuüben, müssen Sie uns mittels einer eindeutigen Erklärung (z. B. ein mit der Post versandter Brief, Telefax oder E-Mail) über Ihren Entschluss, diesen Vertrag zu widerrufen, informieren.
Der Widerruf ist zu richten an:
Eichenlaub & Dumont KG Grundstücksmakler KG
Julius-Kiefer-Str. 113
66119 Saarbrücken
Telefon: 0681/85 54 86
Telefax: 0681/85 34 93 info@eichenlaub-dumont.de
Zur Wahrung der Widerrufsfrist reicht es aus, dass Sie die Mitteilung über die Ausübung des Widerrufsrechts vor Ablauf der Widerrufsfrist absenden.
FOLGEN DES WIDERRUFS:
Wenn Sie diesen Vertrag widerrufen, haben wir Ihnen alle Zahlungen, die wir von Ihnen erhalten haben, unverzüglich und spätestens binnen vierzehn Tagen ab dem Tag zurückzuzahlen, an dem die Mitteilung über Ihren Widerruf dieses Vertrags bei uns eingegangen ist. Für diese Rückzahlung verwenden wir dasselbe Zahlungsmittel, das Sie bei der ursprünglichen Transaktion eingesetzt haben, es sei denn, mit Ihnen wurde ausdrücklich etwas anderes vereinbart; in keinem Fall werden Ihnen wegen dieser Rückzahlung Entgelte berechnet.
Haben Sie verlangt, dass die Dienstleistungen während der Widerrufsfrist beginnen soll, so haben Sie uns einen angemessenen Betrag zu zahlen, der dem Anteil der bis zu dem Zeitpunkt, zu dem Sie uns von der Ausübung des Widerrufsrechts hinsichtlich dieses Vertrags unterrichten, bereits erbrachten Dienstleistungen im Vergleich zum Gesamtumfang der im Vertrag vorgesehenen Dienstleistungen entspricht.
Sie haben nicht das passende gefunden? - Aktivieren Sie den Suchagenten
Aktivieren Sie den Suchagenten und Sie erhalten die neuesten Angebote zu Ihrer Suche sofort und kostenlos per E-Mail. Sie können Ihren Suchauftrag jederzeit bearbeiten oder beenden. Suchagenten jetzt aktivieren! Neue Angebote erhalten