Saarburg bietet als Kleinstadt eine gute Infrastruktur mit Kindergärten, Schule, Fachärzten und eigenem Krankenhaus und Bahnhof. Hier bestehen zahlreiche Einkaufs- und Freizeitmöglichkeiten mit attraktiven Ausflugszielen, einem Hallen- und einem Freibad.
19 km bis L-Wormeldange
21 km bis L-Remich
43 km bis L-Kirchberg
23 km bis D-Trier
Objektbeschreibung
SAARBURG: 1A-LAGE IN DER INNENSTADT!
Dieses charmante Wohn- und Geschäftshaus aus dem 19. Jahrhundert befindet sich in bester Innenstadtlage von Saarburg und bietet eine hervorragende Kombination aus stabilem Mietertrag und attraktivem Entwicklungspotenzial.
U.a. verfügt das Gebäude über eine moderne Gas-Zentralheizung aus dem Jahr 2012, die Dacheindeckung erfolgte in Naturschiefer im Jahr 2010.
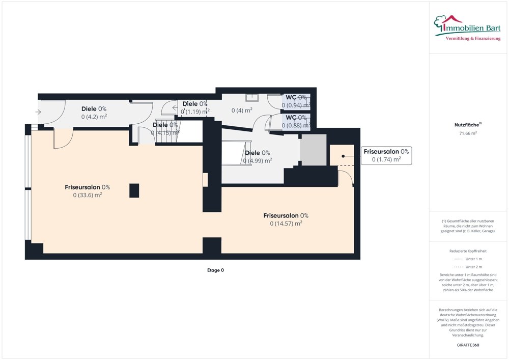
Das Erdgeschoss ist langjährig an einen Friseursalon vermietet, die Vermietung bleibt bestehen. Die moderne Ausstattung sowie die gut sichtbare Schaufensterfront in einer belebten Straße sorgen für eine hohe Kundenfrequenz.
Die darüberliegende, bisher ebenfalls vermietete Wohnung mit ca. 101 m² Wohnfläche erstreckt sich über das 1. und 2. Obergeschoss mit einem zusätzlichen Zimmer im Dachgeschoss.
Sie verfügt über 4 Zimmer, Küche, Bad, Hauswirtschaftsraum, Gäste WC und bietet Zugang zu einer ruhigen Terrasse – ideal für entspannte Stunden im Freien.
DIE WOHNUNG WIRD ZUM 31.01.2026 FREI !!!
Das Dachgeschoss ist bereits teilweise ausgebaut und mit zwei Gauben versehen.
Im Untergeschoss befindet sich ein baujahrestypischer, niedriger Gewölbekeller der zusätzliche Stauraummöglichkeiten bietet.
Aufteilung:
Kellergeschoss:
Gewölbekeller, Heizungsraum
Erdgeschoss:
Diele, Friseursalon, Gäste WC, Abstellraum
1.Obergeschoss:
Diele, Küche, Wohnzimmer, Lager Friseur
2.Obergeschoss:
Diele, 2 Schlafzimmer - davon 1 Durchgangszimmer - , Badezimmer, Wäschekammer, Abstellraum für Gartensachen mit Zugang zur Terrasse
Dachgeschoss:
1 Schlafzimmer, 2 Speicherräume
Sonstiges
Unser gesamtes Immobilienangebot können Sie unter www.immobilien-bart.de einsehen.
Haben wir Ihr Interesse geweckt? Für einen unverbindlichen Besichtigungstermin stehen wir Ihnen nach vorheriger Terminabsprache gerne zur Verfügung. Bitte haben Sie Verständnis dafür, dass wir Anfragen nur bearbeiten, wenn uns der vollständige Name, die Postanschrift und eine Rufnummer mitgeteilt wird. Ihre Daten werden selbstverständlich streng vertraulich und nur für diese Anfrage verwendet.
Sie möchten diese Immobilie finanzieren?
Vereinbaren Sie mit uns einen Beratungstermin, natürlich kostenfrei und unverbindlich. Aus einem Pool von 100 Banken finden wir, auch für Sie, die passende Finanzierung!
Die Käuferprovision beträgt 3,57 % inkl. MwSt. vom notariell beurkundeten Kaufpreis und ist verdient und fällig mit der notariellen Beurkundung.
Haftungsvorbehalt: Sämtliche Angaben erhielten wir vom Eigentümer und geben diese ohne Haftung weiter. Irrtum und Zwischenverkauf bleiben vorbehalten.
Ausstattung
Boden
Fliesen, Laminat, Dielen
heizungsart
Zentralheizung
befeuerung
Gas
Unterkellert
Ja
Die Böden sind mit Dielen, Laminat und Fliesen belegt.
Die Beheizung erfolgt durch eine Gas - Zentralheizung
Besonderheiten der Immobilie:
- 1A-Lage in Saarburgs Einkaufsstraße
- Erdgeschoss vermietet an einen langjährig guten Mieter
- Wohnung im Ober- und Dachgeschoss wird zum 01.02.2026 frei
Großzügiges Architektenhaus in Beckingen - Viel Platz für Ihre Familie
325 m² Wohnfläche • 1.331 m² Grundstücksfläche • 10 Anzahl Zimmer • 7 Anzahl Schlafzimmer • 3 Anzahl Badezimmer
Sie haben nicht das passende gefunden? - Aktivieren Sie den Suchagenten
Aktivieren Sie den Suchagenten und Sie erhalten die neuesten Angebote zu Ihrer Suche sofort und kostenlos per E-Mail. Sie können Ihren Suchauftrag jederzeit bearbeiten oder beenden. Suchagenten jetzt aktivieren! Neue Angebote erhalten